Add a Comment
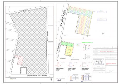
Página Inicial Dia a Dia Cemitério Municipal enfrenta problema de esgotamento em sua capacidade física CEMITERIOOOO JUNHO 2021 DWG-Layout2 (2)
CEMITERIOOOO JUNHO 2021 DWG-Layout2 (2)
Em vermelho, nova área onde serão construídas mais 107 novas carneiras
